Продается участок, , / эт

Земельный участок 12,7 га ❗️Собственность пос. Ольгинка


Населенный пунктсело Ольгинка
Описание

емельный участок 12,7 га ❗️Собственность  
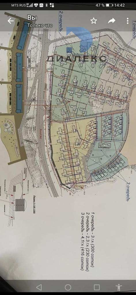
Краснодарском край, Туапсинский район, пос. Ольгинка. Участки расположены в сосновом бору, в экологически чистом месте, с великолепным видом на море и с выходом на береговую линию. Имеется свой пирс, пляж, стоянка для катеров. Общая площадь предлагаемого к рассмотрению земельного пула с учетом дорожной инфраструктуры составляет 12,7 гектара. Земельный пул, в свою очередь, разбит на 4 примыкающих друг к другу участка, площадь которых составляет:
1. Участок № 1 (на схеме справа) площадью 40 726 м.кв. – для строительства санаторно-курортного кластера с оздоровительным центром и апарт-отелем.
2. Участок № 2 (на схеме слева) площадью 54 585 м.кв. – для  апарт-отелей и инфраструктуры для отдыха и туризма.
3. Участок № 3 (верхняя часть) площадью 32 000 м.кв. - для строительства коттеджей и апарт-отеля.
4. Участок № 4 (береговая часть) площадью 4 421 м.кв. – для строительства яхт-клуба и обустройства инфраструктуры пляжа.
Вид права на земельные участки – собственность.
Вид разрешенного использования – для строительства и эксплуатации коттеджного поселка и гостиниц.
Коммуникации – центральные, заведены на участок, тех.условия получены.
Обременения – отсутствуют.
Группой специалистов рекомендован к реализации инвест-проект строительства Оздоровительного центра по предоставлению услуг 4П-медицины с апарт-отелем категории «5 звезд» на 457 номеров, вокруг которого гармонично выстроятся дополнительные объекты гостиничного обслуживания различных категорий, к которым, в свою очередь, примкнут объекты по предоставлению сопутствующих услуг (СПА, питания, бытового обслуживания, торговли, туризма и прочие).
Таким образом, в границах настоящего земельного пула площадью 12,7 га, путем объединения усилий различных инвесторов, предлагается к реализации Инвест-проект строительства  Санаторно-курортного кластера «Кубань» с оздоровительным центром, объектами гостиничного обслуживания и жилой застройки.
Цена:
1. Участок № 1 (на схеме справа) площадью 40 726 м.кв. – 500 000 000,00 руб.
2. Участок № 2 (на схеме слева) площадью 54 585 м.кв. – 500 000 000,00 руб.
3. Участок № 3 (верхняя часть) площадью 32 000 м.кв. – 200 000 000,00 руб.
4. Участок № 4 (береговая часть) площадью 4 421 м.кв. – 200 000 000,00 руб.
5. Земельный пул (пакетное предложение) – 1 400 000 000,00 руб.

Сведения о недвижимости
ID 105
Категория земли Инвестпроект
Площадь участка, сот 1270
Стоимость 1 200 000 000 руб.
Вся недвижимость
Стоимость - 1 200 000 000 руб.
Цена кв.м. - 944 882 руб.
Сумма переплаты: 0
Сумма общая: 0
Ежемесячный платеж: 0

Похожие предложения


Top.Mail.Ru