Земельный участок для усадьбы
| Населенный пункт | Сочи |
|---|---|
| Район города | Лазаревский |
| Улица | улица Львовская |
| Номер дома | 173 |
Описание
Продаются участки 6 соток.
п. Вардане, близость к пансионату "Шексна", до моря 700 метров.
Уникальное, тихое и красивое место.
Центральные коммуникации по границе.
Получен свежий градостроительный план земельных участков.
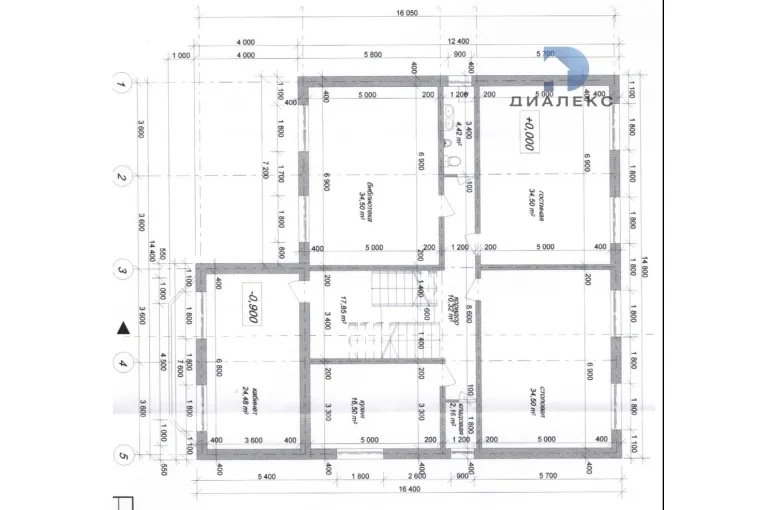
Имеется разрешение на строительство и проект индивидуального жилого дома в 4 этажа, 19 комнат, общей площадью - 717 кв.м., жилой - 400 кв.м.
В фото просмотрите чертежи проекта:
1-ый этаж - тренажёрный зал, бильярдная, мастерская, гардеробная, котельная, холл, кладовая, санузел.
2-ой этаж - гостиная, библиотека, кабинет, столовая, кухня, кладовая, санузел.
3-ий этаж - детская игровая, детская спальная, спальная, гардеробная, гостевая, кладовая, санузел.
4-ый этаж - спальная, спальная, домашний кинотеатр, гостевая, зимний сад, кладовая, санузел.
До инфраструктуры несколько минут.
От участков до моря и ж/д станции «Совхоз» пешком 7-10 минут, до остановки общественного автотранспорта 5 минут.
Транспортное сообщение между поселком Вардане и Сочи хорошо развито, до соседних поселений можно добираться на автобусах и на электричке.
От ж/д станции «Совхоз» на электричке быстро домчитесь до центрального Сочи за 40 - 59 минут в зависимости от поезда, за 80 рублей и до Красной Поляны за 2,5 часа, за 480 руб. или в сторону Краснодара.
Не далеко, за лесополосой проходит федеральная автотрасса А-147, от поворота федеральной трассы до участка ровная дорога в 3 минуты.
От участка до Мор порта в центре Сочи ровно 35 км., сейчас в среднем займет 50 минут.
И самое главное преимущество - это близость к скоростной трассе от поселка Нижняя Хобза до Мамайки, которую уже начали строить.
Дорога позволит уйти от горных серпантинов и избежать все ненавистные пробки в районе Мамайки и Дагомыса, будет прекрасная возможность очень быстро добраться до центрального Сочи и тогда стоимость недвижимости в живописных районах Вардане и Нижней Хобзе вырастит в разы.
Дорога будет четырёхполосная, с 8 туннелями, это - так называемая третья очередь обхода Сочи, трасса берет начало в микрорайоне Мамайка, от тоннеля № 6 второй очереди обхода Сочи и проходит до поселка Нижняя Хобза Лазаревского района.
Протяжённость участка третьей очереди обхода г. Сочи ориентировочно составляет 14,5 км. непрерывного движения транспорта, расчетная скорость движения 120 км/час, следовательно в среднем за 7 минут и вы на Мамайке.
От участка до развязки на трассу в Нижней Хобзе меньше трех километров - три минуты, по трассе 10 минут и вы в центре Сочи.
Сейчас нужно торопиться выгодно купить участок для строительства дома вашей мечты вдали от шумного города и туристов.
До инфраструктуры п. Вардане – 4 км. – школа, детские сады, магазины, рестораны, поликлинника.
Рядом, в 1,5 км. пансионат «Шексна» - один из крупнейших санаторно-курортных учреждений Большого Сочи, со своей вертолётной площадкой.
Оборудованный пляж пансионата с береговой линией более 800 метров, на большом удалении от крупных городских пляжей. Возможно посещение пансионата для оздоровления, реабилитации и занятий спортом: современный медицинский центр, тренажерный зал с кардио и силовой зоной, спортплощадки с прокатом спортинвентаря - теннисные корты, баскетбольные и волейбольные, терренкуры (дорожки из природного камня в хвойном лесу), свежий горный воздух и морские процедуры.
Вардане расположен в узкой приморской полосе и с трёх сторон окружён горами и хребтами. Рельеф на территории посёлка преимущественно холмистый, а местность где расположен наш участок абсолютно ровная и дорога до моря по равнине.
Вардане является одним из старейших поселений на территории нынешнего Сочи. Первые поселения здесь были основаны ещё в каменном веке.
В 1872 году великим князем Михаилом Николаевичем на территории 6,5 гектар было основано имение «Вардане».
Сейчас это абсолютно тихое, но в то же время обжитое место, в целом, любителям тишины и спокойствия должно понравиться.
Данные земельные участки представлены в рамках эксклюзивного договора между собственником и агентством. Все фото, видео материалы и тексты являются уникальными и авторскими - собственность агентства.
Любое копирование полностью или частично - нарушение авторских прав - УК РФ Статья 146.
Есть вопросы, на которые мы можем ответить по этому объекту?
Интересно запланировать встречу для просмотра?
Пожалуйста, свяжитесь с нами удобным для Вас способом, контакты указаны в профиле.
| Сведения о недвижимости | |
|---|---|
| ID | 52 |
| Категория земли | ИЖС |
| Площадь участка, сот | 6 |
| Стоимость | 4 800 000 руб. |















